注文住宅の施工にあたり、ざっくりと30坪・35坪・40坪くらいの坪数で検討している人が多いです。
それもそのはずで、30坪~40坪の一戸建て住宅が一般的な広さの家であると同時に、購入費用としても現実的とされているからなんですね。
そこで、特に気になるのが
- 30坪・35坪・40坪で注文住宅で家を建てた費用の価格相場がいくらくらいになるのか?
- 30坪・35坪・40坪に適した(可能な)間取りプランはどのようなものなのか?
の2点になると思います。
この記事では、30坪・35坪・40坪における注文住宅の総額費用や価格相場とあわせて、坪数ごとにどんな間取りの家を建てることができるのか実例を交えながらお伝えします。
きっとあなたの家づくりで役立つはずです!

0坪~40坪ほどで新築マイホームを建てたいと検討しているのであれば、必見の内容になっていますので是非最後まで読み進めて下さいね。
※この記事は、株式会社AlbaLinkの河田憲二氏より監修者としてアドバイスをいただいています。

監修者:河田憲二(株式会社AlbaLink 代表取締役)
大学在学中に創業したwebマーケティング事業を売却し、その資金で株式会社AlbaLinkを創業する。同社は空き家の売却や事故物件の売却を専門とする不動産業者。また、同社が運営しているサービスサイトである「訳あり物件買取プロ」の運営責任者も務めています。同社は東京証券取引所の東京プロマーケット市場に上場している(証券コード:5537)
注文住宅で建てる「30坪・35坪・40坪」の家が価格的にも人気あり!

まず、30坪~40坪の広さの注文住宅が人気なわけは、冒頭でお伝えしたとおり一般的な家の大きさだからと言えるでしょう。
というのも実は、注文住宅で建てられた新築マイホームの平均的な延べ床面積が、全国平均でおよそ「35坪~40坪」という統計データが公表されていることから一般的な家の大きさとされています。
詳しくは注文住宅の費用相場の記事で確認してください。
一方で、30坪の家は全国平均に比べると小ぶりな家となるため、小さく感じるかもしれません。
それでも首都圏や関西都市圏など、土地価格が高い都市部で建てられる注文住宅の延べ床面積は「30坪前後」が平均的。
予算面や価格面においても2,000万円~3,000万円台で収めやすいため、30坪~40坪の規模の家が人気を集めている理由と言えそうですね。
購入費用はいくら必要?注文住宅「30坪・35坪・40坪」の総額費用と価格相場

ということで、すでに【30坪・35坪・40坪の家にかかる費用】がどのくらいなのか気になっていると思いますので、早速ですがそれぞれの坪数別で『本体価格(建築費用)』・『総額費用(諸費用まですべて込み)』がいくらくらいの相場になるなのか見ていきたいと思います。
ここで重要となるのが1坪(3.30579㎡)当たりの建築費用を表す坪単価。
注文住宅の建築費用の坪単価は、2017年度の全国平均で約67万円となっていますので、こちらの坪単価をベースにシミュレーションしてみましょう。
注文住宅の平均坪単価は、2018年に住宅金融支援機構から発表された2017年度の【建設費用】と【住宅面積】を参考に計算すると坪単価は約86万円。さらに、この【建設費用】の金額を注文住宅の費用と内訳を参考に「本体価格(7割)+付帯工事費(2割)」とした上で本体価格の建築坪単価を計算すると、全国平均の坪単価は約67万円となります。
といっても、ハウスメーカー/工務店によって坪単価の相場は異なります。
それぞれの坪単価を参考にしたい方は、ハウスメーカー/工務店の坪単価ランキング一覧の記事で主要な住宅会社の坪単価を公開していますので、よかったら一度確認してみて下さい。
ここでは、先ほどお伝えした注文住宅で建てた家の全国平均の坪単価とあわせて、ローコスト住宅で建てた場合の坪単価を基に、30坪・35坪・40坪それぞれの本体価格と総額費用の相場について見ていきます。
「30坪の家」の本体価格と総額費用の相場

30坪の家の場合、本体価格だけであれば2,000万円前後の予算でも、充分射程圏内となる相場感覚となります。
また、建築費用を安く抑えられるローコストハウスメーカーに依頼すると、マイホームを1,000万円で購入することも夢ではなく、少し小さめの30坪規模の住宅ならではの特徴と言えます。
全国平均の坪単価で計算
【坪単価67万円とした場合】
| 30坪(99.1㎡)の費用相場の目安 | |
|---|---|
| 本体価格(建築費用) | 2,010万円 |
| 総額費用 (建築費用+付帯工事費用+諸費用) | 2,871万円 |
ローコスト住宅の坪単価で計算
【坪単価30万円~50万円とした場合】
| 30坪(99.1㎡)の費用相場の目安 | |
|---|---|
| 本体価格(建築費用) | 900万円~1,500万円 |
| 総額費用 (建築費用+付帯工事費用+諸費用) | 1,285万円~2,142万円 |
「35坪の家」の本体価格と総額費用の相場

35坪の家の場合、本体価格で2,000万円~2,500万円の間が相場となっています。
ローコストハウスメーカーで建てるなら、35坪の大きさでも総額費用1,000万円台で家を購入できる可能性が大いにある範疇ですね。
全国平均の坪単価で計算
【坪単価67万円とした場合】
| 35坪(115.7㎡)の費用相場の目安 | |
|---|---|
| 本体価格(建築費用) | 2,345万円 |
| 総額費用 (建築費用+付帯工事費用+諸費用) | 3,350万円 |
ローコスト住宅の坪単価で計算
【坪単価30万円~50万円とした場合】
| 35坪(115.7㎡)の費用相場の目安 | |
|---|---|
| 本体価格(建築費用) | 1,050万円~1,750万円 |
| 総額費用 (建築費用+付帯工事費用+諸費用) | 1,500万円~2,500万円 |
「40坪の家」の本体価格と総額費用の相場

40坪の家の場合は。本体価格で2,500万円オーバーとなります。
総額費用がかなりの金額の相場となってしまっていますが、外構工事費などは実際には200万~300万円ほどで十分すぎるほどだと思いますし、実際には造成や配管工事を含めても3,000万円台前半~半ばほどの予算で考えられると思います。
全国平均の坪単価で計算
【坪単価67万円とした場合】
| 40坪(132.2㎡)の費用相場の目安 | |
|---|---|
| 本体価格(建築費用) | 2,680万円 |
| 総額費用 (建築費用+付帯工事費用+諸費用) | 3,828万円 |
ローコスト住宅の坪単価で計算
【坪単価30万円~50万円とした場合】
| 40坪(132.2㎡)の費用相場の目安 | |
|---|---|
| 本体価格(建築費用) | 1,200万円~2,000万円 |
| 総額費用 (建築費用+付帯工事費用+諸費用) | 1,714万円~2,857万円 |
- タウンライフ家づくり -
注文住宅で30坪・35坪・40坪の家を建てたくても、どのくらいの費用がかかるのか正確な金額が分からないと、自分に合った家づくりをするのは難しいですよね。ここまでご紹介した相場だけでは不安な方は、『タウンライフ家づくり』という無料見積もりサービスを利用してみましょう。
複数の住宅会社に一括で見積もりをお願いできるので、設計プランを比較しながら1番安いハウスメーカーを見つけることも簡単です。
正直に言って、家を安く建てたいのであれば『タウンライフ家づくり』以上のポータルサイトはないと思います。
さらに、あなたのために作成してくれるオリジナルの間取り図がもらえるサービスもあり!
こんなに変わる?注文住宅「30坪・35坪・40坪」で建てる家の間取り実例集
注文住宅で家を建てた場合、30坪・35坪・40坪の本体価格や総額費用の相場について見てきました。
次は、それぞれの坪数の家でどのくらいの間取りが実現可能なのか、間取り図の実例をもとにご紹介していきたいと思います。
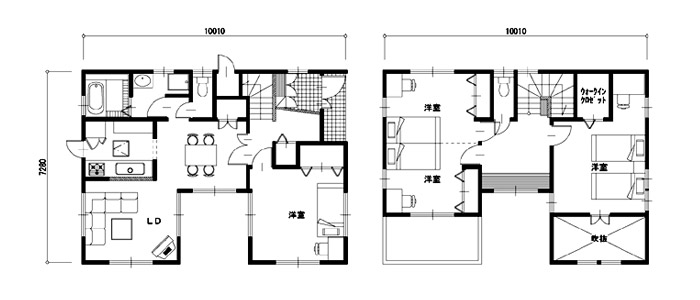
30坪(99㎡)の間取り例
【延べ床面積】30.06坪(99.37㎡)
【間取り】4LDK
【特徴】キッチンや玄関、洗面所(脱衣所)などのスペースを極力小さくとることで、4部屋も設けることができていますが、リビングを含めコンパクトな印象の間取りプランとなっています。
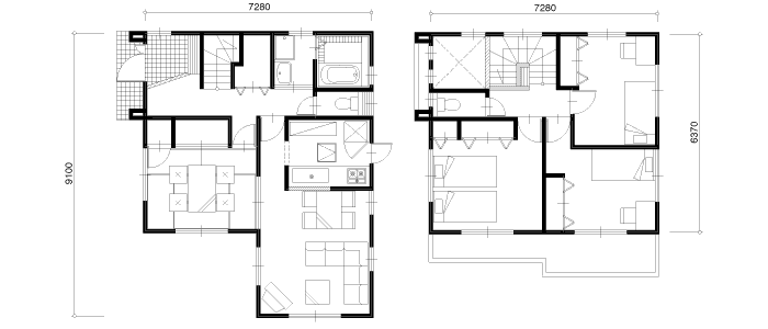
35坪(115㎡)の間取り例

【延べ床面積】34.81坪(115.10㎡)
【間取り】4LDK
【特徴】30坪の家に比べ各部屋にゆとりが出るものの、4LDKの間取りとなるとリビングダイニングに窮屈感はどうしても生まれます。また2階は基本的に主寝室と子供部屋2つの計3部屋は一般的にとれますが、35坪の家では主寝室が収納とあわせても10畳以上のゆったりと広さを確保しやすいのが特徴です。
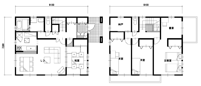
40坪(132㎡)の間取り例
【延べ床面積】40.07坪(132.48㎡)
【間取り】4LDK+DEN+S
【特徴】40坪の家となると、1階部分にLDKプラス1部屋(和室など)を設けても、大空間のリビングダイニングを実現することが可能になります。また上記の間取り例のように、3部屋に加え書斎や納戸を設けることも。35坪の家と5坪しか違いませんが、40坪の家はこれだけゆとりが生まれます。
坪数別にみる平屋の間取り例
平屋30坪の3LDKの間取り図[南玄関]
![平屋30坪の3LDKの間取り図[南玄関]](http://ouchisoudan.jp/wp-content/uploads/2017/06/bungalow-merit-floorplan-idea25.jpg)
出典:株式会社フォルムハウス
【延べ床面積】26.75坪(88.44㎡)
【間取り】3LDK+S
平屋35坪の3LDKの中庭のある間取り図[東玄関]

出典:新築間取り
【延べ床面積】36坪(119㎡)
【間取り】3LDK+S
平屋40坪の4LDKのウッドデッキのある間取り図[南玄関]
![平屋40坪の4LDKのウッドデッキのある間取り図[南玄関]](http://ouchisoudan.jp/wp-content/uploads/2017/06/bungalow-merit-floorplan-idea30.jpg)
出典:ミサワホーム
【延べ床面積】37.82坪(125.04㎡)
【間取り】4LDK+DEN
他にも、平屋の間取りアイデアとなる実例を集めた記事がありますので、よかったらそちらも合わせて読んでみて下さい。
30坪や35坪は狭い?40坪は広い?どのくらいの間取りが実現可能?
30坪だけでなく、たまに35坪の家も「狭い」「小さい」と言われますが、上記での間取り例の画像をみてみると、工夫次第では4LDKの間取りにすることが出来ています。
ただ、どうしてもリビングやキッチン、ランドリースペースや寝室などが狭く感じるかもしれません。
ゆったりとした広さが欲しい場合は、無理をせず3LDKで間取り計画を立てる方が現実的でしょう。
また、40坪の家は35坪と5坪しか変わりませんが、畳数にすると10畳近く広さが変わってきます。
40坪の家の場合は、4LDKの間取りを無理なく実現できる大きさと言えますね。
- タウンライフ家づくり -
30坪・35坪・40坪の家に適した間取り設計は、自分たちの力だけでは到底不可能です。そこで『タウンライフ家づくり』という無料サービスを利用してみましょう。
あなたが気になっている複数の住宅会社に、一括で間取り図の作成を依頼することができるので、プロの設計士が手がけた“あなた専用のオリジナル間取りプラン”を手に入れることができます。
プロが作る間取り設計図を無料でもらえるサービスは『タウンライフ家づくり』だけなので是非活用してみましょう!
「延べ床面積」か「施工面積」によって坪単価の意味合いが大きく異なる
実はハウスメーカーや工務店などの広告で、坪単価が明記されていることがあります。
今回の記事でお伝えした坪単価は、30坪、35坪、40坪それぞれ「延べ床面積」にて算出していますが、業者によっては「施工面積」で算出した坪単価を使用していることもしばしば。
どちらの坪単価なのかをしっかりと把握しておかないと、後々不都合がでてきてしまいます。
延べ床面積での坪単価と施工面積での坪単価が違うと、なぜ不都合なのでしょう?
坪単価の相場が異なる算出方法の違い
延べ床面積はその名の通り床がある部分を「延べ床」とし、本体価格から「延べ床面積(坪数)」で割った価格を「坪単価」としています。
一方、施工面積は家の延べ床面積はもちろん、他にも施工した部分となりますので、
- 駐車スペース
- 玄関ポーチ
- ウッドデッキ
などの家の外にある構造物は全て施工面積に含まれます。
となると、施工された面積が大きければ大きいほど坪単価は低く抑えられるために、見かけ上はとても安い坪単価としてアピールすることが可能です。
ハウスメーカーや工務店には、このような手法をとっている場合もありますので、1社だけではなく複数の業者の価格を把握しておくことが重要となります。
複数社の費用を全て問い合わせるのはとても労力がかかりますので、下記のような大手ハウスメーカーが登録されているサイトで確認してみましょう。
まずはカタログだけで十分という方は、無料のカタログ請求サービスのLIFULL HOME’Sを使っている人も多いので、是非利用してみましょう。
建築費の平均坪単価はあくまで目安
ただし、坪単価はあくまで目安として参考にするべきです。
注文住宅で新築を建てる場合、本体価格だけでなく諸費用もかかってきますし、その金額はある一定の相場があるにせよ、家によって様々な価格となっています。
ある程度正確な金額を知るためには、先ほどのサイトを利用してみると簡単に情報が得られるのでオススメですよ。





