変形地で注文住宅を建てる場合は、土地の形状が複雑なために家づくりが難しくなります。
なぜなら、整形された敷地で建てる一般的な家よりも、変形地であることで“様々な要素に注意を払いながら住宅設計を行う”必要が出てくるからです。
特に、家の形や間取り、外構は悩ましいポイントとなり、注文住宅を検討している人からは敬遠されがちです。
ですが、悪い箇所となるデメリットばかりが注目されがちな変形地でも、実は敷地がいびつなことによるメリットも多くあるので、その土地の特性を理解しそれを活かした家づくりを進めることで、満足のいく快適な注文住宅を建てることが可能ですよ。
そこで今回は、
「形が悪くていびつな土地の購入を検討しているけど、どんな家が建てられるのか知りたい!」
「変形地に建てる家の間取りアイデアが欲しい!」
「実際のところ変形地ってやめておいた方がいい?」
と困っているあなたに、変形地の立地を活かした注文住宅の家づくりのポイントについて、注意点や工夫の仕方について解説していきます。
変形地とは?形の悪いいびつな土地
「そもそも変形地ってどんな土地?」と明確に知らない人のために、まずは変形地についてご紹介します。
- 変形地(変形土地)とは
- 家を建てるための敷地は、通常であれば正方形や長方形に近い形に区画整理された整形地が多いですが、土地の区画割りの際にやむを得ずできてしまう形の悪いいびつな形状の土地、いわゆる変則的な形をした不整形土地を指します。変形地には、旗のシルエットのような形状の「旗竿地(はたざおち)」、三角形の形状をした「三角地」、敷地が斜めに傾いている「傾斜地(けいしゃち)」、長方形でも極端に細長い「うなぎの寝床」などがあります。変形土地・変形敷地とも呼ばれています。
上記をまとめると、形が悪い変形地というのは「宅地分譲や土地売却に伴う分筆などの際に行われる土地の区割りの際に発生」してしまう、ということですね。
他にも、台形や菱形(ひしがた)、5角形の土地なども。
これだけではなかなかイメージが付きにくいと思いますので、さきほど変形土地の種類としてお伝えした、
- 旗竿地(はたざおち)
- 三角地
- 傾斜地(けいしゃち)
- うなぎの寝床
について、イメージ画像と合わせてそれぞれ簡単にご紹介していきます。
旗竿地(はたざおち)

旗のように棒の部分と旗の部分から構成される「旗竿地(敷地延長)」と呼ばれる変形地。
道路から敷地の奥側に延びる細い箇所が竿となる部分、細い敷地の奥にあるまとまった広さのある箇所が旗となる部分です。

元々は1つの広い敷地であることが多く、複数の土地に分筆して売却するタイミングなどで上記図のように区画割りすることで、旗竿地が生まれます。
三角地(さんかくち)

名前の通り土地の形が三角形なことから「三角地(さんかくち)」と呼ばれる変形地。
ほとんどの場合は角に位置する土地となります。
三角形の角度の度合いにもよりますが、変形地の家づくりにおいて特に制限を受けやすい土地で、家本体となる建物以外の「駐車スペース」「庭」「玄関アプローチ」などのプランは熟考する必要が出てきます。
傾斜地(けいしゃち)

敷地が斜めに傾いていたり段差がある「傾斜地(けいしゃち)」と呼ばれる変形地。
土地が平らではないので、家を建てる平たい部分を設けるために切り土や盛土の必要があったり、宅地造成にて擁壁(ようへき)の工事も行うことになります。
他の変形地と比べて、安全性に十分考慮が必要となる土地タイプです。
特に、急傾斜地崩壊危険区域ではないかどうかは、土地選びの段階で必ず確認すべきポイントとなります。
うなぎの寝床(ねどこ)

奥へと細長い「うなぎの寝床(ねどこ)」と呼ばれる変形地。
道路と面している間口が狭く、奥に細長く続く敷地が”うなぎの寝床のよう”ということから、名づけられた用語となっています。
例えば、道路に面している部分の敷地の「横幅5m」・「奥行き25m」といったような、縦横の辺の長さが極端にアンバランスとなっているのが特徴です。
また変形地の中には、形状がいびつで面積が小さい狭小土地が多い傾向にあります。
“狭い敷地で建てる家”については「狭小住宅についての記事」があるので、そちらも併せて参考にしてみて下さいね。
どの土地も形状が特殊となるため、注文住宅を建ててくれるハウスメーカーや工務店がいかに土地の特性に合ったプランニングを行えるかによって、家の住み心地が大きく左右されることになります。
家づくりが難しい変形地に建てるマイホームで失敗しないためにも、変形地が持つメリットやデメリットについて詳しく知っておくようにしましょう。
変形土地に建てる注文住宅のメリット
家づくりの課題が多くなる変形地ですが、メリットを理解した上で利点を活かした住宅を建てることができそうであれば、あえて不整形地の購入も視野に入れてみてもいいかもしれませんね。
それではここで、変形地に建てる注文住宅のメリットをご紹介します。
- 土地価格の相場が安いので予算を家の建築費用に回すことが可能
- 土地の評価額が低いので各種税金を抑えられ家計への負担が緩和できる
1.整形地に比べて土地価格が安い
変形地は、区画割りが綺麗にされている整形地よりも、土地価格の相場が安くなるメリットがあります。
冒頭でもお伝えした通り、変形地に家を建てるとなると様々な制約が発生する恐れがあるため、一般的な相場では土地が売れないという背景があります。
土地選びでは、多くの方が長方形もしくは正方形の土地を好みますが、理想的な土地の形状だからと言って必ずしも”いい家”を建てられるわけではありませんよね。
変形地を安く購入できる分、予算を注文住宅の建築費用に充てたり、充実した設備の導入費用に充てることで、快適な家を建てることも可能になります。
2.土地の評価額が低いため固定資産税・相続税が安い
変形地は売りに出ている価格の安さだけでなく、土地としての評価額が整形地よりも低くなるので、購入後にかかる固定資産税・相続税などの税金が安くすみます。
というのも、不整形となる土地面積の割合(地積割合)に応じて土地の評価額が補正されることとなっていて、土地の評価額を最大40%も抑えることができる税制面での優遇措置があるためです。
固定資産税や相続税は購入時はあまり気にならないものの、住み始めてから直面する問題となりますので、税金を少しでも安く抑えられることで、マイホーム購入後の家計の圧迫を和らげることが可能です。
変形地に建てる注文住宅のデメリット
次に、不整形地にマイホームを建てる際に注意しておきたい、変形地ならではのデメリットについてご紹介します。
- 建築費用が高くなりやすい
- 外構・地盤改良・ライフライン整備に費用がかかりやすい
- 変形地を敬遠するハウスメーカーも存在する
1.注文住宅の建築費用が高くつきやすい
まず1点目に、『うわものとなる家本体の建築費用が高くなりやすい』というデメリットがあります。
旗竿地を例に挙げると、道路に面している敷地から奥の開けた敷地まで横幅が狭いので、もしも「トラックで建材や住宅設備を搬入できない場合」「躯体を組み立てるクレーンが通れない場合」には、マンパワーである人手に頼って運搬や人工施工を進めていくことになり、建築費用に加算されてしまいます。
さらに、変形地に対応した家は一般的な住宅とは異なり、家の形状や間取りなどメーカーの規格外となる可能性が高く、費用が割高となってしまいます。
2.付帯工事費用がかさみやすい
変形地でマイホームを建てるとなると、家の建築費用が割高になるだけでなく、
- 駐車スペース
- エクステリア
- カーポート
- 玄関アプローチ
などの付帯工事に含まれる外構工事費用がかさむ可能性が高くなります。
旗竿地の通路部分の土間コンクリートや、三角地で必須となる目隠しのフェンス(塀)、傾斜地であれば庭土や土留めなど、整形地で建てる家では気にも留めない項目に経費がかかることに。
さらに、旗竿地であれば上下水道や電気・ガスなどのライフラインが奥の開けた部分まで敷かれていないこともあるので、家を建てるところまで引きこむための費用が必要ですし、傾斜地であれば基礎工事・地盤改良工事・擁壁(ようへき)コンクリート工事などの施工費用がかかることも。
3.規格住宅を主とするハウスメーカーには敬遠されやすい
変形地は、基本的には規格型住宅を主とするようなハウスメーカーには敬遠されがちです。しかし工務店や設計事務所などは、変形地での住宅設計、施行を得意としているところもある上、建設技術の進化もあり、変形地だからといって必ずしも購入を断念する必要はありません。
ただ、それでも場所によっては、最新の技術を持ってしても建設が難しい変形地があるのも確かです。では変形地を選択する際に注意するべき点とはどういったものなのでしょう?
変形地に家を建てる時に知っておきたい注意点と工夫できるポイント!
ここまでお伝えした変形地のメリットとデメリットを踏まえ、
- 注文住宅を建てるときにどういった点について気を付けるべきなのか
- 変形地のデメリットを感じない家づくりをする為にどんな工夫をすべきなのか
上記2つの視点から、様々な制限を受ける変形地でも「いかにして理想のマイホームを建てるのか」、その方法について見ていきましょう。
土地の形状を活用した家の配置・外構を意識する
変形地を上手く活用するためには、その土地の特性を理解した上でアイデアを出すようにしないといけません。
土地の形を活かす工夫ができる「旗竿地」「傾斜地」の2つのケースで解説します。
旗竿地のケース
旗竿地は旗状のシルエットの形をした土地のため、奥の開けた敷地部分までの細長い部分は、駐車スペースや玄関アプローチとするのが普通です。
ですが、四方を隣地に囲まれた旗竿地でも、竿の部分となる細長い敷地のエクステリアにこだわることで、ワンランク上の家づくりが可能になります。

出典元:旗竿地(はたざおち)の住宅実例|SUVACO(スバコ)
例えば上記写真のように、背の高い木塀を通路の両側に設置し、植栽や敷石をお洒落な雰囲気に仕上げることで、落ち着いたプライベート感を演出することができますし、下記写真のように敷地の両隣の隣地にフェンスなどがなく空間が開けているのであれば、開放感を意識した外構にすることで奥に建てるマイホームの外観を楽しむデザインを検討することもできます。

出典元:旗竿地(はたざおち)の住宅実例|SUVACO(スバコ)
道路に面している間口から建物までの導入部分に距離がある特徴を活かし、他の家とは一味違う雰囲気を作り上げるようにしてみると魅力的な家に仕上げることができます。
傾斜地のケース
注文住宅を傾斜地に建てる場合に注意したいのが、切り土や盛土で平らな部分を作り出さなければいけない点です。
他にも、地盤強化や擁壁などの工事にも費用がかかることを考えると、整形地を購入するよりも総額が高くなってしまうのは避けたいところ。
そこで、切り土や盛土は必要最小限に留めておき、傾斜地の高低差を活かした家づくりを考えてみましょう。

道路に面している敷地の方が低い場合は、上記写真のように1階部分をビルトインガレージにして、敷地が高い奥側となる2階部分を居住空間とした家を建てることで、造成に費用を割くことを防ぐことが可能になります。
逆に、道路に面している敷地の方が高い場合には注意が必要で、水回りの設備を道路と同じ高さとなる階に設置することが重要になります。
基本的に排水ルートは道路と同じ高さにあるので、敷地が低い方にお風呂やキッチンなどを設置してしまうと、排水をポンプアップする設備が必要となりコストがかさんでしまいます。
家の形状や間取り設計を工夫する
変形地ならではの土地の立地を活用するポイントをお伝えしましたが、次は住宅や間取りで注意したいポイントやどのように工夫すると良いのかをお伝えします。
三角地のケース
三角地は、変形地の中でも特に家を建てにくい土地となります。
敷地の広さにもよりますが、30坪前後しかないようなあまり面積が大きくない場合は、建物の形状を敷地に合わせるように設計してもらうようにすることがとても重要になってきます。

例えば、上記図のように家の形状を箱型にしてしまうと、居住床面積が狭くなるだけでなく庭や駐車スペースも中途半端になりかねません。
そこで下記の図のように、土地の形状に合わせた家の形状にすることで、居住スペースを無駄なく確保することができるようになり、デッドスペースが生まれるリスクを最小限に抑えることが可能になります。

箱状の住宅ではないので建築費用は高くなりやすいですが、形状はもちろん外観も個性的なデザインにできます。
また、三角地の角まで家の形を合わせなくても、ウッドデッキで対応することで、建築費を抑えた上で無駄なく敷地を利用する工夫も。

三角地の土地の形状にもよりますが、家の形と土地の形を上手くマッチさせてあげるようにし、建物周辺のスペースを上手く活用できるようにプランを立てましょう。
傾斜地のケース
傾斜地の場合、下記の図のように敷地の高低差を活かして、ステップフロアのある間取り設計を取り入れるのもおすすめです。

出典元:ステップフロア|株式会社 進光 建築部門
また、ミサワホームの蔵のある家のように、中二階(1.5階)となる部分を収納スペースとして活用することもできますし、斜面側の見晴らしがよく周囲からの視線が気にならない場合は、大開口の大きな窓を設けて開放感・採光を実現することも可能です。
うなぎの寝床のケース
奥に細長い土地となる『うなぎの寝床』の場合、どうしても採光や風通しの問題に直面することになります。
そこで、建物をコの字型にして真ん中に中庭を設けることで、隣地との距離が近くても光や風を室内に取り込みやすくなり、合わせて解放感によって室内が広く見える効果も得られます。
また、コの字型の中庭以外の工夫としておすすめなのが、下記の写真のように天窓を設けることでトップライトとして日当たりを確保する方法です。

出典元:うなぎのねどこ|高級住宅街|トップライト | 前田敦計画工房
上の階から下の階まで明るさを取り込めますし、換気にも適しているのでおすすめです。
また、奥行きが長い特徴を活かして、視線が先まで伸びるような奥行き感を出した間取り設計をすると、広々とした空間を演出した家づくりが可能です。
変形地に建てる家の間取りアイデアの実例
変形地に家を建てる時に注意したいポイントや、快適な住まいにするための工夫の仕方についてお伝えしました。
次は、変形地にどんな間取りの注文住宅を実際に建てているのか、実例をいくつかまとめましたので家づくりの参考にしてみましょう。
アイデア①変形地-三角地に建てる2階建て住宅の間取り実例(敷地30坪)

出典元:SUUMO
敷地の広さが30坪と、若干狭小地とも言える三角地で建てた2階建て住宅の間取りです。
なるべく家の外周の形状を土地の形に合わせていて、少しでも無駄なスペースが出来ないように意識して設計されています。
ですが、三角地に合わせて家をかたどる場合、どうしても壁が斜めとなってしまう部分ができるので、シューズクロークやウォークインクローゼットなどの収納スペースに充てる工夫をしています。
アイデア②変形地-三角地に建てる2階建て住宅の間取り実例(敷地32坪)


出典元:松戸展示場 | 埼玉・東京・千葉の注文住宅「ポウハウス」
東京・埼玉・千葉を中心とした家づくりを行う『ポウハウス』さんの松戸展示場にあるモデルハウスの間取りです。
間取り図は1階分しかなかったのですが、先ほどの事例と同様に三角地に建てた2階建て住宅となっています。
この例の場合、玄関スペースや寝室のクローゼット部分で三角地の斜め部分を緩和しています。
また、キッチンとダイニングにも工夫がされていて、特殊な形状のダイニングテーブルを造り付けすることで、快適な食空間を実現しています。
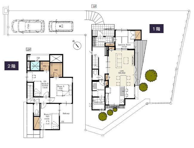
アイデア③変形地-旗竿地に建てる2階建て住宅の間取り実例(敷地31坪)

出典元:株式会社野村工務店
敷地面積31坪の旗竿地に建てられた注文住宅の間取りです。
間取り図の向かって左側が北になるのですが、建物をできるだけ北側に寄せて右側(南)から太陽の光が入るように工夫されています。
アイデア④変形地-台形の土地に建てる平屋住宅の間取り実例(敷地100坪)

出典元:家づくりNAVIくまもと|新産住拓(株)
敷地の広さが100坪と、大きい台形の土地に建てた平屋の間取り図なのですが、建坪は36坪ほど。
50坪弱の台形の土地であれば、間取りアイデアの参考になりそうです。
土地の形に合わせて家の形状が設計されていて、無駄のない間取りと動線を意識して建てられていることが分かります。
また、南側に大きなリビングを持ってくることで、採光にも充分気を配られています。
アイデア⑤変形地[のこぎり型]の間取り実例
![変形地[のこぎり型]の間取り設計図](http://ouchisoudan.jp/wp-content/uploads/2019/03/deformation-areas-house20.jpg)
出典元:コンパス建築工房
こちらは少し番外編とはなりますが、ギザギザな形が特徴的なノコギリ型の変形地で建てられた住宅です。
間取り図を見て頂くと分かりますが、土地の形に合わせてアーチ状の壁に。
なので、もちろん室内も随所でアーチを楽しむことができる、遊び心溢れる家になっています。
まとめ
注文住宅で家を建てる土地を探す場合、希望の立地や予算とのバランスを見ながら決めて行くことになりますが、整形地ばかりで探していると予算が見合わなかったり、探しているエリアで見つからないことも…。
そんな時は、今回ご紹介した変形地も候補に入れることで、立地や予算に妥協しなくても“良い土地”に出会える可能性が出てきます。
ただし、変形地の価格相場が安いからと言って、土地購入を急がないように注意して下さいね。
その変形地が持つ土地の特性を理解し、
- どのような間取りが実現できるのか
- 費用面でも問題がないのか
を確認してから土地を購入しても遅くはありません。
「いい条件だけど変形地だからやめておこう…」と諦めずに、まずはその土地でどのような家を建てることができるのか、今回ご紹介した『変形地に建てる住宅の間取りアイデア』を参考に、色んな住宅プランや間取り設計でじっくりとシミュレーションしてみましょう。



