注文住宅で平屋を建てると決めたら、次は間取りをどのようにするのか悩むところ。
「平屋で30坪の家って小さい?4LDKの間取りは可能?」
「40坪の平屋でおしゃれな中庭が欲しい!快適に過ごせる間取りは?」
「平屋で20坪の狭小住宅ならどんな間取りがあるの?」
なんて、分からないことだらけ…。
ですが、平屋の間取りアイデアを家族で出し合うのは、憧れのマイホームを注文住宅で建てる時の楽しみでもありますよね。
そこで今回は、
- 平屋住宅の特徴やメリット
- 平屋の特性を活かした間取り決めのポイント
- 平屋の間取りアイデアの参考となるおしゃれな間取り図やプランの実例
など、平屋の間取りを決める上で重要な情報をお伝えしていきます。
平屋には2階建てにはない魅力やメリットがたくさんありますが、平屋住宅の特性を活かした理想の家づくりの為にも、平屋の特徴やメリットをしっかり把握した上で間取りプランを立てていくことが大切です。
この記事でご紹介する平屋住宅の利点をうまく引き出せるように、あなたの家族が快適に過ごせる平屋ならではのおしゃれな間取りアイデアを考えていきましょう。
色んな住宅メーカーの平屋が見てみたい方は、まずは下記からカタログをお取り寄せしてみよう!
平屋の間取りプランを立てる前に「平屋の家」の特徴を把握しておこう!

もともと平屋といえば「定年退職後の夫婦がのんびりと暮らす家」というイメージですが、現在は新婚夫婦や小さな子供がいる子育て世代など若年層でも人気が出ていますし、おしゃれな印象を受けますよね。
アンケート調査会社『マイボイスコム』の調査によると、一戸建て住宅を検討している人のうち、3人に1人は平屋の家を理想的な家のタイプと答えていることが分かります。
Researched by理想の住まいのアンケート調査|マイボイスコム
なぜ最近になって平屋の人気が高まっているのか、その理由はやはり平屋の最大の特徴である“ワンフロアの暮らし”と言えるのではないでしょうか。
平屋の最大の特徴は「階段のないワンフロアの暮らし」
平屋の家は、2階建て・3階建て住宅と大きく異なり、ワンフロア(1階建て)の住宅になります。
階段がない生活になると、上下階への移動動作をする必要がなくなるので楽ですし、「ワンフロアで快適な動線」を叶える間取りを実現させることも可能です。
また平屋は安心・安全面でもメリットを感じられる住宅となっていて、フラットな住宅となるため小さな子供の転落の危険性がなく安心して生活できますし、二世帯住宅で考えている場合では高齢者となる親世代の方にとって階段や段差を気にしないですむ安全な家を建てることが出来ます。
この“ワンフロアで暮らしすべてを包括できる安心できる家”こそが、平屋が子育て世代に人気な理由と言えるでしょう。
ただ、2階建てや3階建てと同等の部屋数・居住スペースを確保しようとすると、土地の敷地面積・建築面積が必要になるので、広い土地が必要です。
平屋住宅のメリットはこんなにも!
新築一戸建てで平屋の家を建てる場合、注文住宅だからこそできる『平屋ならではのメリット』があるんです。
先ほどお伝えした、暮らしの全てを1階部分だけで過ごせる快適さと利便性は、2階建て・3階建て住宅にはない大きな魅力ですが、平屋のメリットはこれだけではありません。
- 家族間でのコミュニケーションがとりやすい
- 掃除がしやすい
- 光熱費やメンテナンス費用が節約できるので安くなる
- 将来的にバリアフリーへのリフォームもしやすい
- 同じ建坪なら2階建てよりも安い
- 2階部分がないため構造的に地震や台風に強い
- デザインも現代的でスタイリッシュなイメージ
etc…
平屋というだけでこれだけのメリットがあるので、平屋の家が人気なのもうなずけますね。
また平屋だけに限りませんが、一戸建て住宅は長期間にわたって住むことになるあなたの家です。
平屋であれば、将来的なことを考えてバリアフリー仕様にする際も低予算でのリフォームで実現できてしまいますし、そもそもワンフロア住居なので高齢者に優しい家づくりが可能です。
今現在の暮らしだけでなく、将来のことにも想像を膨らませて間取りづくりをすることで、平屋住宅のメリットを最大限活用できるアイデアを生みだすことが出来るでしょう。

平屋は最小限のスペースでおしゃれな空間を楽しめる上に、2階建てでは味わうことが出来ないワンフロアならではの快適な生活が期待できることが分かりました。
ここでお伝えしたメリットをしっかり押さえたうえで、快適な間取りプランを立てていきましょう!
次では、注文住宅で平屋の間取りを決める時のコツをお伝えしていきますね。
失敗しない”平屋の家”の間取り決めのコツは?これだけははずせない注意点
平屋の家の特徴やメリットについて簡単にお伝えしましたが、ここでは『平屋の特徴やメリットなどの特性を活かした間取りアイデアの決め方』についてご紹介します。
平屋では生活全ての要素を1階部分に持ってくるため、間取りを考える際には色々な工夫をしなければなりません。
平屋の間取り決めのコツとして、
- 平屋の特性を活かした快適な動線づくりを心掛ける
- 採光と通風に気を配った間取りアイデアを考える
- 部屋や収納の配置は空間を上手に使うように意識する
上記の3つは外せない大きなポイントとなっていて、平屋の間取り決めには重要な要素です。
それでは3つの注意点について、それぞれ詳しく見てみましょう。
1.平屋の間取りアイデアは「快適な動線づくり」をベースにしよう!
注文住宅で平屋の間取りアイデアを計画する時は、
快適な動線づくり
が平屋の間取りづくりの基本になるのですが、動線には『家事動線』と『生活動線』の2つがあります。
家事導線として意識したいものには、
- キッチン周り
- ランドリー・バスルーム
- バルコニー
- 収納スペース
主にこれらの配置があり、主婦の方がスムーズに家事を行うためには、家の中の間取りが家事の効率を左右する最大の要因となります。
例えば、キッチンから扉一枚を挟んで洗面所や浴室に行けるような間取りにし、洗濯した衣類をそのまますぐに干せるよう洗面所からバルコニーの位置関係を意識したりするなど、家事をする際にどのような動きをするのかを参考にします。
家事動線を考慮した間取りアイデアは、奥さんの意見やアイデアを積極的に取り入れてみましょう。ただ、家事動線ばかり気にしすぎて、家族の生活動線があまりにも不便になるようであれば見直さないといけませんので注意してください。
また生活動線も同様に、どのような間取りにすると家族みんなが「スムーズに移動できるのか」ということを考慮してアイデアを出す必要があります。

その上で、現実的な間取りなのか、他の要素とのバランスが取れているのか、という視点から少しずつ修正を加えていくと、理想的な間取りプランに近づけやすくなりますよ。
2.採光と通風に気を配った間取りアイデアを考えてみる
平屋の場合、2階建て住宅に比べると横幅や奥行きがある住居設計になります。
すると、窓から距離ができる家の中央スペースに太陽の光が入りづらくなり、照明をつけないと昼間でも薄暗く感じることも。
そこで、日当たりを重視したい『リビング・子供部屋・書斎』などの居住空間を”南側”に持ってくるような間取りにし、『バスルーム・ランドリー・トイレ・廊下・収納スペース』など滞在時間が短い部屋やスペースは”南側以外”で考えるようにするのがコツです。
難しければ、
- リビングや廊下に天窓(トップライト)を設置
- 各部屋に高窓(ハイサイドライト)を設置
など採光できるような間取りになるよう工夫してみましょう。
また、土地の形にもよりますが、東西に細長いI字型の平屋にすることができれば、全部屋を南側に位置させることも可能になり、採光も容易になります。
この細長の構造は通風の面でも理想的で、南側の窓と北側の窓の距離が短くなることで風通しも良くなりますし、湿気がこもりにくくカビの発生などを防ぎやすい形です。
細長の家と同様に平屋の家の採光に適しているのが、中庭やデッキを南側に設けるようにしたコの字型(ヘコミ部分が南側)にした間取りです。
細長いI字型や中庭などを設けるコの字型は、平屋全体に光を取り入れやすくオススメですよ。
風通しの面では、廊下をなくして各部屋に風が行きわたるようにしてあげると、風通しがかなりよくなります。
ですが風で扉が閉まってしまうこともありますので、可能であれば個室以外のドアは横にスライドさせる引き戸にして対処するのもおすすめです。

これらに注意した間取りにすることで、太陽光を取り入れつつも平屋の風通しの良い特性を活かしつつ「採光・通風」に適した平屋を建てることができるようになります。
3.空間を上手く使って部屋や収納の配置を考えよう!
平屋は2階建てや3階建てに比べると、コスト面や土地の広さの面から床面積を大きく取りずらい傾向にあります。
その為、いかに“限られた空間を上手く使えるか”が平屋の間取りのポイントです。
例えば収納面なら、各部屋の収納スペースは最小限に留めておき、大きくまとまった収納物に関しては『小屋裏収納』を活用することで、少しでも居住空間にスペースを割くことが出来、屋根裏部分に収納を持ってくるので空間を有効に使えるようになります。
それだけじゃない!住居維持費の節約のための間取りアイデア
スムーズな動線や採光・風通し、空間の使い方に配慮した間取りを計画することが、平屋住宅の間取りづくりには大切なのですが、住宅購入後のメンテナンスなどの維持費を安く抑えるためにも『間取りづくり』はこだわりましょう。
2階建ての場合、バルコニーやトイレなどが2階にあるにもかかわらず、主な水回りは1階にあることが多くなりますが、平屋の場合は全て1階に集約されます。
水回りなどを一方向に集めた間取りにすることで、配管の設置がシンプルになりますので、その分『建築費』を少しでも抑えることが可能になります。
また、定期的に行うメンテナンスも容易になり、配管メンテナンス料金の節約にも繋がるというわけなんですね。

平屋住宅は2階建てに比べて家全体に目を行き届けやすいので、毎日の家事のみならず住宅の手入れまでしやすい間取りを考えることが、家を長持ちさせるコツとなりますよ。
ハウスメーカーや工務店などの住宅会社には、家事導線の基本的な間取りプランが存在しますので、ベースとなる間取りプランを提案してもらった上で微調整をしていくのも、間取りづくりのコツの1つです。
もし先に、ハウスメーカーから間取りアイデアを作成してもらい、それをベースに間取り決めを進めていきたい場合は、下記のWEBサービスを利用すると複数のハウスメーカーから間取りプランを無料で提案してもらえますよ。
各ハウスメーカーが建てる平屋の間取りのモデルプランを見てみよう!

次に、ハウスメーカーが公開している”平屋の家”の間取りのモデルプランをご紹介していきます。
ここでご紹介する間取りのモデルプランは、一部のハウスメーカーが公開している平屋の家の間取りです。
各ハウスメーカーではどのような間取りの平屋を建てられるのか、アイデアの参考にしてみましょう!
「住友林業」が建てる平屋の家の外観・間取りモデル


「セキスイハイム」が建てる平屋の家の外観・間取りモデル


「タマホーム」が建てる平屋の家の外観・間取りモデル


「ダイワハウス」が建てる平屋の家の外観・間取りモデル


「ミサワホーム」が建てる平屋の家の外観・間取りモデル


「トヨタホーム」が建てる平屋の家の外観・間取りモデル


「パナソニックホームズ」が建てる平屋の家の外観・間取りモデル


「アイフルホーム」が建てる平屋の家の外観・間取りモデル


ハウスメーカーの設計のプロがあなた専用の間取りプランを一から作成してくれます!
平屋20坪・25坪の間取り図とプラン実例
20坪~25坪の平屋の家を建てる場合、想定される家族構成は
- 子供が巣立ったあとの夫婦2人暮らし
- 親世代の一人住まい
となります。
これから子育てする世代は、20坪~25坪前後で家を建てるなら平屋ではなく2階建てにし、部屋数を確保できるような家にすると良いでしょう。
平屋20坪以下の1LDKの間取り図[西玄関]

出典:山井建設
平屋20坪以下の2LDKの間取り図[南玄関]

出典:アイパッソの家
平屋20坪以下のロフトがある間取り図[東玄関]

出典:ログハウスのTALO
平屋25坪の2LDKの間取り図[東玄関]

出典:いえものがたり
平屋25坪の3LDKの間取り図[南玄関]

出典:アイパッソの家
平屋30坪・35坪の間取り図とプラン実例
平屋でも、延べ床面積が30坪~35坪ほどになると、広さにも少しゆとりが生まれるので間取りの自由度も高くなり、2LDKはもちろん3LDK、間取りの工夫次第では4LDKも視野に入れることが可能です。
部屋数も十分に確保できるので、小さな子供が1~2人くらいいる子育て世代のファミリーのマイホームとして、30坪~35坪くらいの平屋が一番人気となっています。
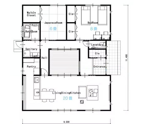
平屋30坪の2LDKの中庭のある間取り図[東玄関]
![平屋30坪の2LDKの間取り図[東玄関]](http://ouchisoudan.jp/wp-content/uploads/2017/06/bungalow-merit-floorplan-idea24.jpg)
出典:株式会社フォルムハウス
平屋30坪の3LDKの間取り図[南玄関]
![平屋30坪の3LDKの間取り図[南玄関]](http://ouchisoudan.jp/wp-content/uploads/2017/06/bungalow-merit-floorplan-idea25.jpg)
出典:株式会社フォルムハウス
平屋30坪の4LDKの中庭のある間取り図[北玄関]

出典:ミサワホーム
平屋35坪の3LDKの中庭のある間取り図[東玄関]

出典:新築間取り
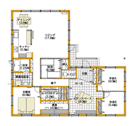
平屋35坪の4LDKの屋根裏部屋など収納スペースが充実した間取り図[南玄関]
![平屋35坪の4LDKの屋根裏部屋のある間取り図[南玄関]](http://ouchisoudan.jp/wp-content/uploads/2017/06/bungalow-merit-floorplan-idea28.jpg)
出典:アイパッソの家
平屋40坪・50坪の間取り図とプラン実例
平屋で40坪~50坪となると、豪邸とも言えるほどの広さがあります。
ウッドデッキや中庭を設けた上で、部屋数も十分な数を確保できるゆとりが生まれるほどスペースがあるので、間取り設計はのびのびと自由にアイデアを出すことが出来そうです。
40坪~50坪の平屋は、特に二世帯住宅として検討している家庭が多い広さと言えます。
平屋40坪の3LDKのL字型の間取り図[北玄関]
![平屋40坪の3LDKの間取り図[北玄関]](http://ouchisoudan.jp/wp-content/uploads/2017/06/bungalow-merit-floorplan-idea29.jpg)
出典:アーキビジョン21
平屋40坪の4LDKのウッドデッキのある間取り図[南玄関]
![平屋40坪の4LDKのウッドデッキのある間取り図[南玄関]](http://ouchisoudan.jp/wp-content/uploads/2017/06/bungalow-merit-floorplan-idea30.jpg)
出典:ミサワホーム
平屋40坪の5LDKの中庭のある間取り図[東玄関]
![平屋40坪の5LDKの中庭のある間取り図[東玄関]](http://ouchisoudan.jp/wp-content/uploads/2017/06/bungalow-merit-floorplan-idea31.jpg)
出典:建築サポート
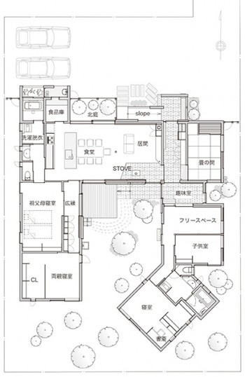
平屋50坪5LDKの二世帯・中庭のある間取り図[北玄関]
![平屋50坪5LDKの二世帯・中庭のある間取り図[北玄関]](http://ouchisoudan.jp/wp-content/uploads/2017/06/bungalow-merit-floorplan-idea32.jpg)
出典:NPO法人 家づくりの会
まとめ
今回は、注文住宅で建てる「平屋」の間取りについてお伝えしました。
平屋の家の間取りは、
- 平屋の家の特徴やメリットなどの住宅の特性を知る
- 平屋の特性を活かす間取りアイデアの考え方やコツを知る
- 平屋の間取り図の実例を見て間取りアイデアの参考にする
上記3点を実行することで、初めての家づくりでもスムーズに間取りプランを立てることが出来ますし、理想的な間取りに近づけることが可能になります。
まず平屋の間取りで大切になることは、生活や家事の要となる「導線づくり」です。
この導線づくりも、平屋のメリットとデメリットをしっかりと把握しておくことが大切になりますので、この記事を何度も繰り返し読んで頂けると幸いです。
また、とても効率の良い間取り決めの方法として、ハウスメーカーに積極的に間取りプランを作成してもらう方法があります。
ですが、住宅展示場などで各ハウスメーカーに赴いて担当者と何度も打ち合わせをして要望を伝えて…なんて結構たいへんな労力がかかりますよね。
そんな時は、インターネットの一括資料請求サービスを利用してみましょう。
今では、WEBからハウスメーカーに間取りプランの作成を無料で依頼することができるので、忙しい人や面倒くさがりな人にとってもおすすめですよ。
ハウスメーカーの設計のプロがあなた専用の間取りプランを一から作成してくれます!



